КМЗ изготовит краны к двум модернизированным плавучим энергоблокам проекта 20871
Российский морской регистр согласовал техническую документацию к специальным мостовым кранам для плавучих энергетических блоков. Их изготовит военно-промышленный холдинг «Кингисеппский машиностроительный завод» (КМЗ).

«На основании согласованного комплекта подготовлена и передана на производство рабоче-конструкторская документация. Ведутся подготовительные работы. Изготовление кранов начнется в ближайшее время, передать их планируем в следующем году», - сообщил Mashnews заместитель директора по продажам КМЗ Максим Плешивенко.
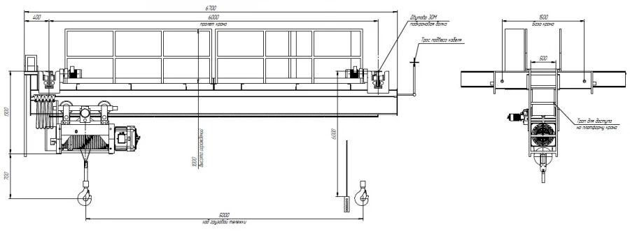
Проектированием кранов для модернизированных плавучих энергетических блоков (МПЭБ) занималось собственное конструкторское бюро КМЗ. Учитывая специфику оборудования, оно должно соответствовать как требованиям Российского морского регистра судоходства, так и Правилам классификации и постройки атомных судов и плавучих сооружений. В частности, разработанные в КМЗ краны отвечают 3 классу безопасности оборудования для атомной отрасли.
Главная их задача — техническое обслуживание реакторной установки при проведении работ по перезагрузке и ремонте реакторной установки. Грузоподъемность — 3,2 тонны.
Монтироваться краны будут в помещении шлюза люковых закрытий, то есть, внутри специального отсека платформы. Опыт создания подобного оборудования у КМЗ уже был — завод разработал специальные мостовые краны для самых больших в мире атомных ледоколов проекта 22220 - «Якутия» и «Чукотка». Эти атомоходы, так же, как и МПЭБ, оснащаются реакторной установкой «РИТМ-200» разработки Опытного конструкторское бюро машиностроения имени И. И. Африкантова. Атомный ледокол «Якутия» с мостовым краном КМЗ сдан в эксплуатацию в декабре 2024 года, «Чукотка» пока достраивается на Балтийском заводе. По данным ТАСС, сдача намечена на декабрь 2026 года.
МПЭБ предназначены для обеспечения электроэнергией объектов Баимской рудной зоны на Чукотке - береговых гидротехнических и технологических сооружений и выдачу в береговые сети до 106 МВт. Головной блок будет размещен у мыса Наглёйнгын на Чаунской губе Восточно-Сибирского моря.
Опыт использования мобильной атомной энергетики на Чукотке уже есть. С 2020 года в порту города Певек пришвартована ПАТЭС «Академик Ломоносов» - плавучая атомная теплоэлектростанция. Правда, в отличие от ПАТЭС, в МПЭБ не предусмотрена когенерация, то есть, одновременная выработка электрической и теплоэнергии. Однако принцип работы тот же — МПЭБ обеспечивает передачу энергии без создания сложной береговой инфраструктуры, что позволяет эксплуатировать такие объекты в самых труднодоступных районах страны.